Italiano
255.000 €

INVERIGO loc Romanò vendiamo nuovi TRILOCALI

3 locali in vendita • Inverigo
INVERIGO località Romanò, a pochi minuti da stazione, scuole e servizi primari, proponiamo 4 TRILOCALI situati in nuovo complesso residenziale disposto su due piani, con annessi spazi esterni a giardino, parcheggi esterni, posti auto coperti con cantine private a piano terra.
Possibilità di personalizzazione degli spazi interni.

Appartamenti disponibili:
- Un trilocale al piano terra composto da ingresso, soggiorno con angolo cottura e uscita sul portico e ampio giardino, disimpegno, due camere e due bagni;
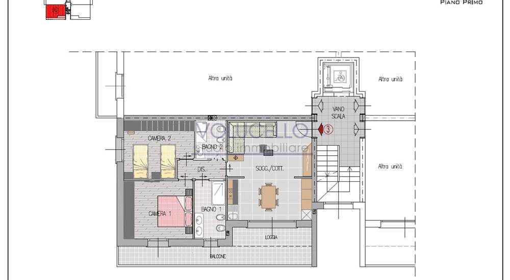
- Due trilocali al piano primo composti da ingresso, soggiorno con angolo cottura, soggiorno e uscita sul balcone, disimpegno, due camere di cui una con uscita sul balcone e due bagni;
- Un trilocale al piano primo composto da ingresso, soggiorno con angolo cottura e uscita sul balcone, disimpegno, due camere entrambe con uscita sul secondo balcone, due bagni di cui uno con accesso al balcone.

Appartamenti a partire da € 255.000,00, posto auto coperto € 25.000,00

Rif MM
Caratteristiche principali
Codice
V000900
Città
Inverigo
Categoria
3 locali
Prezzo
255.000 €
Locali
3
Camere
2
Bagni
2
Mq
95
Classe energetica
A
Stato Immobile
Prossima Realizzazione
Grado
Signorile
Posizione
Periferia
Arredi
Non Arredato
Tipo Soggiorno
Soggiorno
Tipo Cucina
Angolo Cottura
Riscaldamento
Autonomo
Tipo Riscaldam.
Pompa di Calore
Tipo Impianto
Pavimento
Fonte Energetica
Elettrico
Acqua Calda
Autonoma
Infissi
PVC Doppio Vetro
Serramenti
Nuovo
Persiana
Tapparella PVC
Pavim. Giorno
Gres Porcellanato
Pavim. Notte
Parquet
Pavim. Cucina
Gres Porcellanato
Pavim. Bagno
Gres Porcellanato
Accesso Disabili
Nessuna Barriera

Accessori: Antifurto, Ascensore, Doppi Vetri, Impianto Fotovoltaico, Impianto Satellitare, Pannelli Solari, Passaggio Automobilistico, Passaggio Pedonale, Porta Blindata, Tapparelle Elettriche, Video Citofono

Condividi su
Cookie preference